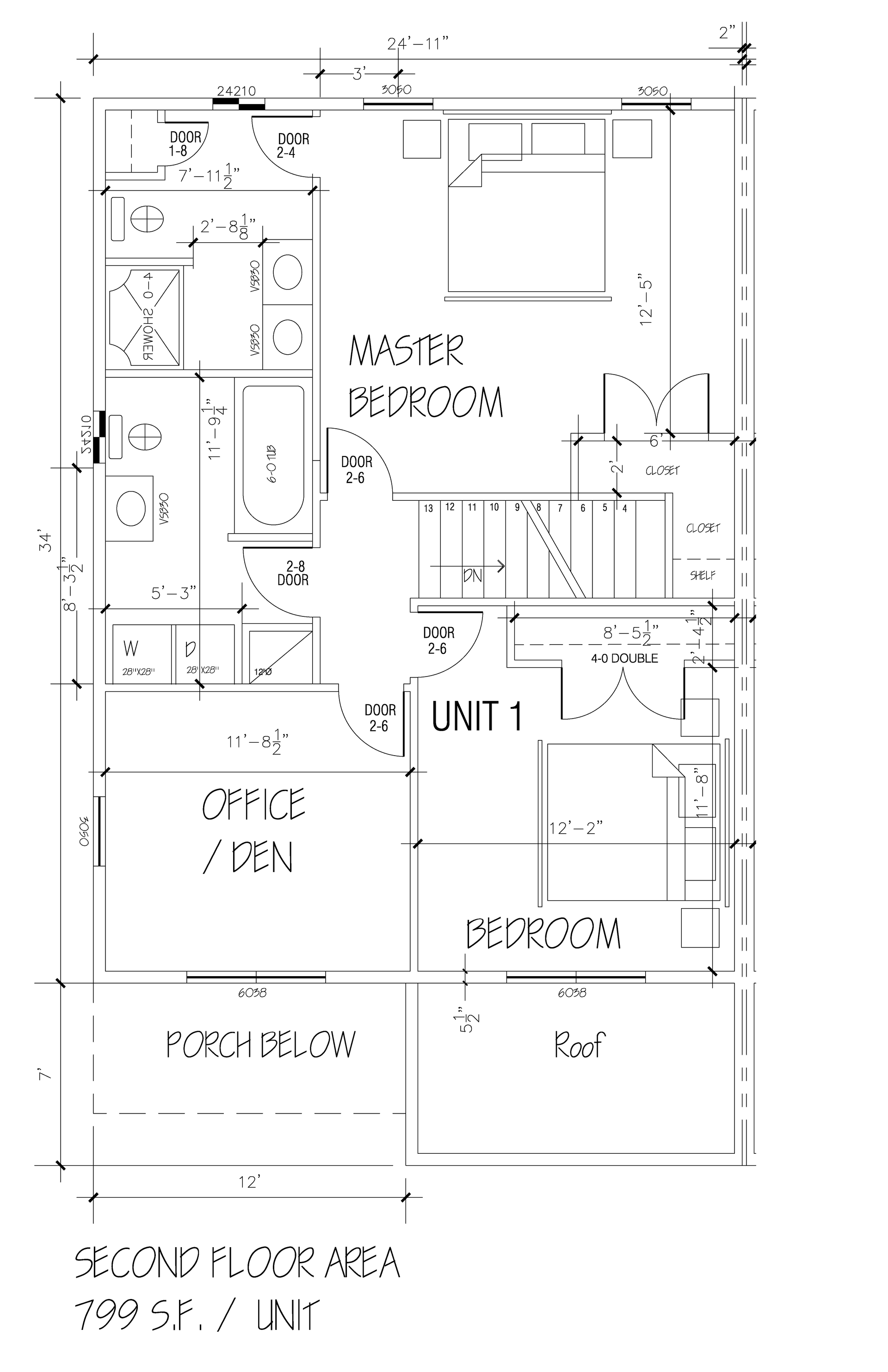
2 Bedroom, 2 1/2 Baths
Greenwood Village (55+) Danville, NH
Fourteen 55+ age restricted townhouses located off of Sandown Road near the town forest but just minutes from everything you need! Danville, a small, quiet rural town in Southern New Hampshire boasts fantastic ratings for both safety and their school system.
About Greenwood Village:
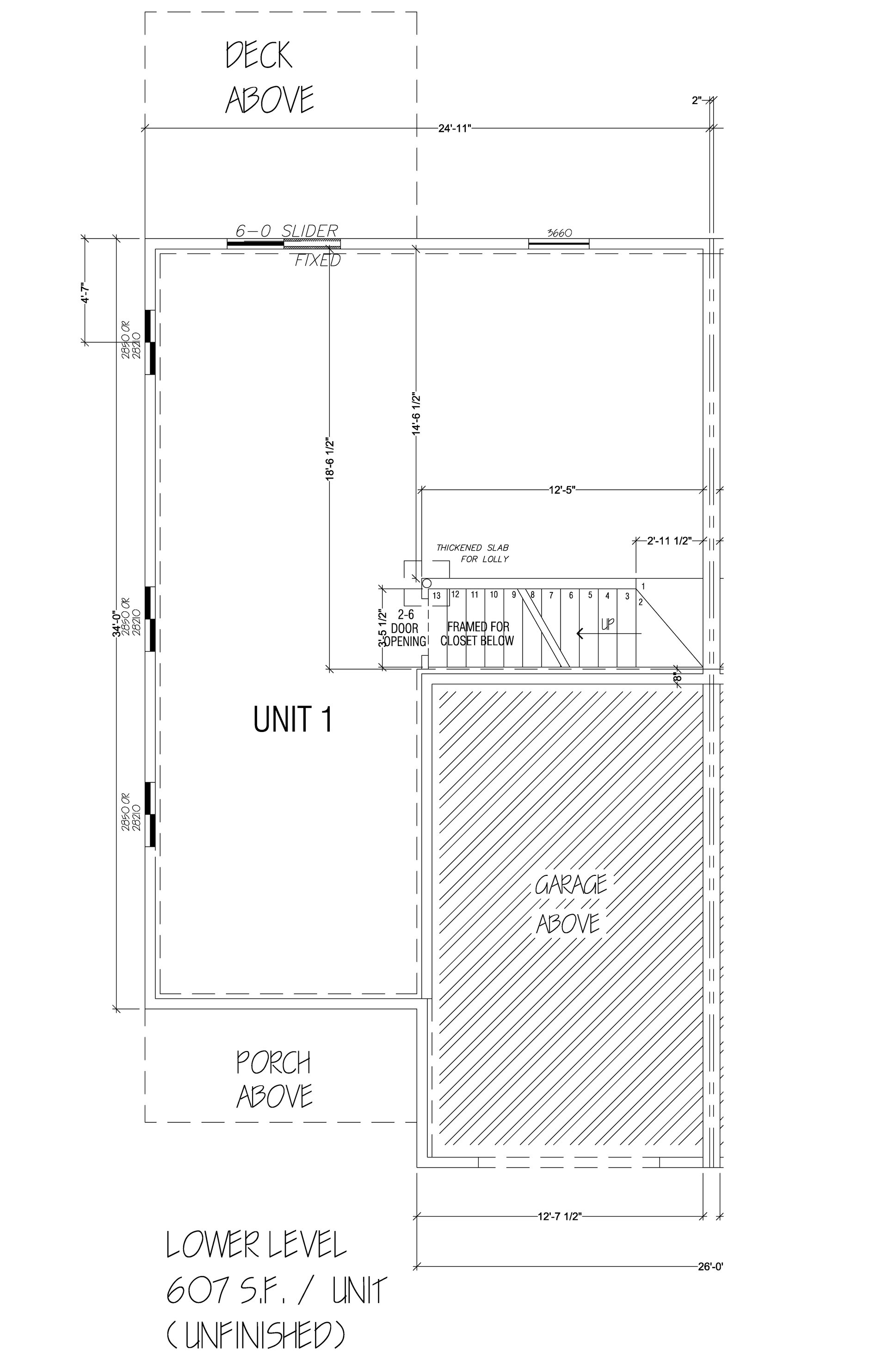
2 Bedroom, 2 1/2 Bath 55+ Age-Restricted Townhouse featuring an open concept living area, Fully-Applianced Kitchen, Central A/C, Gas Fireplace, and Washer & Dryer. 2nd floor includes Primary Bedroom with En Suite & Walk-in closet, ample sized 2nd bedroom as well as a bonus room. Abundant area for storage can be found in this home's 1 car attached garage and unfinished walkout basement. Common Amenities to include Community Garden, Fire Pit and Grill Area.
*All details tentative and subject to change
2 Bedrooms, 2 1/2 Baths
~1420 Square Feet
Features
Central A/C, Gas Fireplace, Fully Applianced Kitchen, Washer & Dryer
Garage
-----------------------------
Non-Smoking
No Pets
55+ Age Restricted
----------------------------
*All information subject to change

































